GRAND AVENUE
Просторные виллы премиум-класса в центре
самой престижной локации острова - Лагуны Пхукет.
BOTANICA
От ведущего девелопера
С многолетним опытом
и множеством наград
Уникальное
рАсположение
Комплекс вилл в самом центре престижного района
Выгодная
инвестиция
Доходность до 10% в год при сдаче в аренду
284800 м²
Площадь проекта:
Единение с природой
Botanica Grand Avenue - это уникальный проект возле озера, где кроны вековых деревьев позволяют почувствовать единение с природой в центре оживлённого района Банг Тао. Ландшафтный дизайн выполнен ведущими архитекторами.
Проект GRAND AVENUE выполнен в 4 различных стилях, умело подобранных друг к другу так, чтобы создавать единую композицию. Каждый дизайн отражает различные концепции, что позволяет быть уверенными: вы найдёте то, что ищете.
4 дизайна
- 4 стиля жизни
Grand Modern Luxury
Grand Modern Luxury -
для тех, кому важен статус
Цена от: $1,575,520 | B56,640,000 | ₽145,790,743
Вилла Grand Modern Luxury предлагает пространство для жизни, сочетающее изысканность и современность. В каждой детали заложена цель создать гармонию между внешним видом и комфортом.
5 просторных
спален

5-7 ванных комнат
Бассейн
17 метров
Гараж на
2 машины
Совершенство в деталях

В вилле Grand Modern Luxury каждое пространство предлагает что-то особенное, от бассейна и большого сада до тщательно продуманной планировки комнат. Это место, где красота и комфорт сбалансированы, а внимание к деталям устанавливает высокие стандарты жизни.
О локации
Расчёт окупаемости
Покупка в 3 шага
Мы ценим ваше время!
Закажите звонок, и наши специалисты подготовят для вас индивидуальное предложение с учётом всех ваших пожеланий.
Актуальный список резервов на сегодня
Столько вилл в этом дизайне будет построено в рамках проекта
12
Внешняя площадь:
883 м²
Внутренняя площадь:
817 м²
Площадь земли:
1800 м²
Общая площадь:
1700 м²
Grand Forest
Гармония в деталях
с виллой Grand Forest
Цена от: $1,837,715 | B65,000,000 | ₽167,140,247
Архитектурное решение данной виллы объединяет современный дизайн и природу, создавая уникальное место жизни для тех, кто ценит красоту и тишину. Все элементы, начиная от выбранных материалов до цветовой схемы, спроектированы так, чтобы гармонировать с естественным окружением.
4 просторных
спальни
4-7 ванных комнат
Бассейн
10-18 метров
Гараж на
2 машины
Наедине с природой вдали от шума
Расположение и дизайн виллы обеспечивает полное отсутствие постороннего шума: лишь вы и природа. Эта вилла – идеальное место для тех, кто ищет уединение и возможность перезагрузиться, находясь в полном согласии с природой.
О локации
Расчёт окупаемости
Покупка в 3 шага
Мы ценим ваше время!
Закажите звонок и наши специалисты подготовят для вас индивидуальное предложение с учётом всех ваших пожеланий.
Актуальный список резервов на сегодня
Столько вилл в этом дизайне будет создано в рамках проекта
44
Внешняя площадь:
от 210 м²
Внутренняя площадь:
от 220 м²
Площадь земли:
от 720 м²
Общая площадь:
от 430 м²
Signature Tropical Balinese
Signature Tropical Balinese
- стиль Азии во всем
великолепии
Цена от: $1,837,715 | B65,000,000 | ₽167,140,247
Это место, где традиционный балийский стиль и современный дизайн соединяются, создавая уникальную концепцию жизни. Именно здесь можно в полной мере ощутить красоту Азии, прочувствовать единение Запада и Востока в деталях интерьера и архитектуры.
4-5 просторных
спален
5-8 ванных комнат
Бассейн
10-18 метров
Гараж на
2 машины
Уникальное путешествие
с Запада на Восток
Grand Signature предлагает погружение в культуру Таиланда через детально проработанные элементы интерьера и архитектуры, каждый из которых имеет свою историю. Дизайн направлен на достижение аутентичной атмосферы и изысканности, начиная от входных дверей с традиционными узорами до внутренних двориков с водоемами и тропическими растениями.
Актуальный список резервов на сегодня
О локации
Расчёт окупаемости
Покупка в 3 шага
Мы ценим ваше время!
Закажите звонок и наши специалисты подготовят для вас индивидуальное предложение с учётом всех ваших пожеланий.
Столько вилл в этом дизайне будет создано в рамках проекта
12
Внешняя площадь:
от 257 м²
Внутренняя площадь:
от 259 м²
Площадь земли:
от 863 м²
Общая площадь:
от 516 м²
Modern Elegant
Красота в минимализме: Modern Elegant

Цена от: $1,837,715 | B65,000,000 | ₽167,140,247
Modern Elegant представляет собой пример современного дизайна, нацеленного на тех, кто ценит чистоту форм и гармонию пространства. Эта вилла демонстрирует использование минимализма в архитектуре, где каждый элемент наполнен эстетикой этого стиля.
4 просторных
спальни
5 ванных комнат
Бассейн
11 метров
Гараж на
2 машины
Комфорт, созданный именно для вас

Концепция Modern Elegant - это гармоничное сочетание простых форм и продуманного пространства. Планировка вилл позволяет достичь идеального баланса между красотой и функциональностью. При этом каждая комната наполнена естественным светом благодаря большим панорамным окнам.
О локации
Расчёт окупаемости
Покупка в 3 шага
Мы ценим ваше время!
Закажите звонок и наши специалисты подготовят для вас индивидуальное предложение с учётом всех ваших пожеланий.
Актуальный список резервов на сегодня
Столько вилл в этом дизайне будет создано в рамках проекта
44
Внешняя площадь:
от 257 м²
Внутренняя площадь:
от 259 м²
Площадь земли:
от 863 м²
Общая площадь:
от 516 м²
Наедине с природой
112
В концепции проекта Botanica Grand Avenue главное место занимает природа. Общественные пространства проекта гармонично вписаны в ландшафт и позволяют наслаждаться тенью деревьев в жаркий день или вечерними прогулками с семьей по обустроенной набережной вокруг озера.
Количество
вилл в проекте
GRAND AVENUE
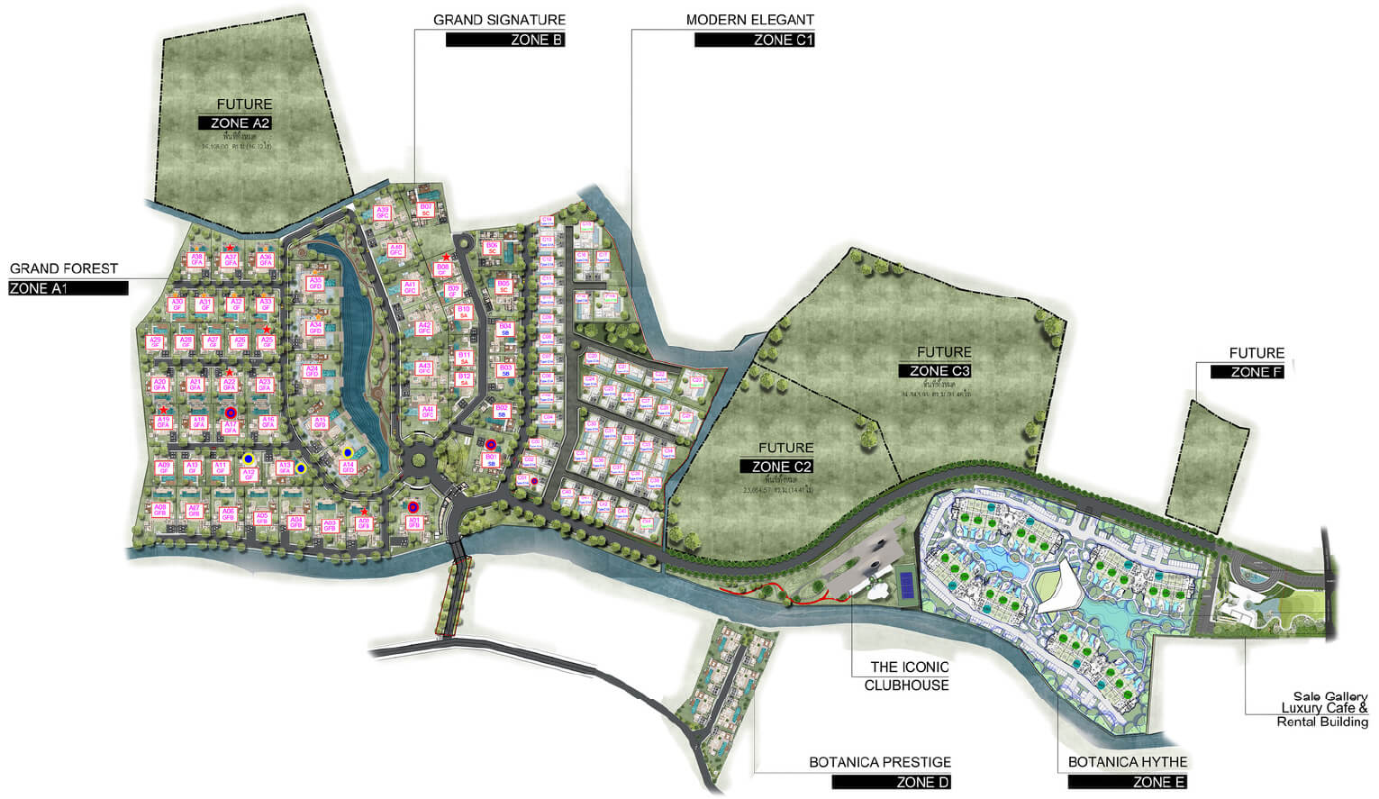
Мастер план
На данный момент в продаже виллы в зонах A, B и С, в ближайшем будущем планируется строительство новых фаз проекта. Также на территории будет расположен кондоминиум Botanica Hythe.

Общая площадь :
Дороги :
Дороги и тротуары
Зеленые насаждения :
285,017 м²
10,421 м²
14,368 м²
5,938 м²
Зона A1-B
В зоне A1-B будет расположено 56 вилл. Территория комплекса продумана таким образом, чтобы жители могли с комфортом пользоваться всей инфраструктурой проекта Botanica Grand Avenue.
Общая площадь :
Дороги :
Дороги и тротуары
Зеленые насаждения :
285,017 м²
10,421 м²
14,368 м²
5,938 м²
BOTANICA GRAND AVENUE
от
Площадь участков
430 м²
от
Жилая площадь
412 - 2151 м²
12
/56
Вилл уже нашли своих владельцев
Зона С1
В зоне C1 будет расположено 44 виллы. Территория комплекса продумана таким образом, чтобы жители могли с комфортом пользоваться всей инфраструктурой проекта Botanica Grand Avenue.
Общая площадь :
Дороги :
Дороги и тротуары
Зеленые насаждения :
31,320 м²
3,810 м²
1,196 м²
730 м²
BOTANICA GRAND AVENUE
от
Площадь участков
482 м²
от
Жилая площадь
459 - 1285 м²
3
/44
Вилл уже нашли своих владельцев
Инфраструктура
BOTANICA GRAND AVENUE
Ресторан высокой кухни
Благодаря уникальным ингредиентам и проверенным рецептам мировой кухни в этом ресторане определенно будет предложено одно из самых интересных меню на Пхукете.
Теннисный корт
Теннис - это популярный вид спорта на острове Пхукет. В последнее время все больше людей предпочитает играть в падел-теннис, корт для игры в который будет также в проекте.
Фитнес-клуб мирового уровня
Доступ к неограниченным возможностям фитнеса премиум класса: йога, групповые занятия, тренажерный зал, SPA-салон, а также тренировки на свежем воздухе.
Локация
Комплекс расположен в центре престижного района: 4 пляжа, всевозможные услуги, сервисы и развлечения.
Пляж Лаян
Пляж Банг Тао
Пляж Най Тон
Пляж Сурин
5 мин
10 мин
15 мин
20 мин
A
B
C
D
Boat Avenue
Blue Tree Lagoon
Laguna Golf
Торговый центр Lotus’s
5 мин
15 мин
2 мин
15 мин

E
F
G
H
Thalang Hospital
Robinson Lifestyle
Phuket Airport
Bangkok Hospital
20 мин
20 мин
30 мин
45 мин
I
J
K
L
Инвестируйте в недвижимость, которая будет приносить вам ежегодную прибыль, не отнимая вашего времени - профессиональная команда возьмёт управление вашей виллой на себя: от обслуживания до размещения гостей.
Годовой доход от аренды
Расходы на обслуживание в год
9-10%
0,9%
Чистая годовая прибыль
Стоимость объекта через 3 года
8-9%
+20%
Доходность
Расчёт окупаемости является приблизительным прогнозом аналитиков команды Kalinka Thailand с учётом рыночных цен и конъюнктуры на данный момент. Расчёт несет ознакомительный характер.
Сроки строительства
Масштаб проекта трудно недооценить. Несколько фаз с виллами в разных стилях, современная продуманная инфраструктура и ландшафтный дизайн требуют времени.
Зона A1-B
EIA ................................................
Начало строительства ...............
Окончание строительства .........
2024
2026
2028
3 шага
Заполните заявку, и наш консультант свяжется с вами для предоставления полной информации об условиях бронирования, способах оплаты и других деталях.
Как купить виллу в проекте без рисков за
01
Заявка
Внесите депозит для оформления резерва любым удобным способом, включая swift-перевод, криптовалюту или рубли. После оплаты застройщик предоставит квитанцию.
02
Депозит
Подпишите договор купли-продажи и внесите первый платеж в размере 30%. Это также можно сделать удаленно. Все вопросы вам поможет решить персональный менеджер.
03
Сделка
О застройщике
Botanica Luxury создает проекты, основываясь на трех принципах: природа, дизайн, качество.

В портфолио застройщика 15 реализованных и 4 новых проекта, цель которых предложить клиентам новое качество жизни.
проектов
реализовано
лет
опыта
престижных
наград
15
16
20+
kalinka-thailand.com
Kalinka Thailand - агентство недвижимости с 25-летней историей на рынке России. Компания построила целую экосистему, которая позволяет занимать лидирующие позиции на рынке премиальной недвижимости по всему миру с оборотом по сумме сделок более 1 миллиарда долларов США в 2023 году.
25 лет
>90 000
$1 МЛРД
130 000
На рынке премиальной недвижимости
Клиентов включая TOP 100 Forbes List
Годовой оборот
компании
Объектов по всему миру в базе компании
Награды:
эксклюзивный ПРЕДСТАВИТЕЛЬ ЗАСТРОЙЩИКА
European Property Awards Real Estate
Лучшее агентство недвижимости в Москве
Наша команда — это профессионалы рынка, знакомые с инновациями и цифровыми технологиями, но ценящие традиции и личное общение с клиентом.
КОНТАКТЫ
Свяжитесь с нами любым удобным для вас способом, или оставьте заявку и наши специалисты ответят на все ваши вопросы.
Телефон:
+66 80 065 0775
E-mail
office@kalinka-thailand.com
Офис продаж:
63/202 Moo 2, Koh Kaew, Phuket, Thailand
Часы работы:
с 10:00 до 18:00, пн-сб
ОСТАЛИСЬ ВОПРОСЫ?
Наши специалисты с радостью проконсультируют вас и помогут подобрать лучший вариант для ваших целей.